Professional sale / Sales of commercial lease / Roquebrune-Cap-Martin / France

540 000

Rèf : SK2327

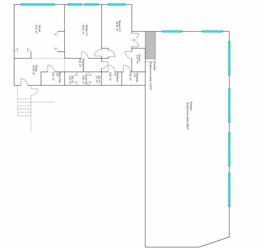
821.00 sqm
Total area
Non défini/Aucun
Nbr. of rooms
5+
Parking(s)
RDC
Floor
Carnoles
District
600.00 sqm
Land

description

Details

Transaction type :

Professional sale

Property type :

Sales of commercial lease

City :

Roquebrune-Cap-Martin

Country :

France

Total area :

821.00 sqm

Nbr. of rooms :

Non défini/Aucun

Parking(s) :

5+

Floor :

RDC

District :

Carnoles

Land :

600.00 sqm

Classes Energie :

C ( )

Classes GES :

A ( )

Contactez-nous

    Carat properties

    Téléphone : +377 99 99 18 18

    E-mail : contact@carat-properties.com

    This site is registered on wpml.org as a development site. Switch to a production site key to remove this banner.