commercial Space – view on the port

2 756 000

Rèf : MFMICH077 Michelangelo

85.50 sqm
Total area
85.50 sqm
Living area
Non défini/Aucun
Nbr. of rooms
rdc
Floor
Fontvieille
District
Le Michelangelo
Building

description

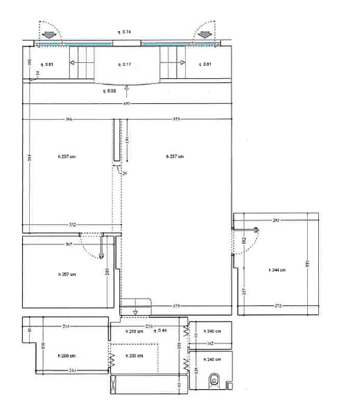
Nice surface area for this commercial space located on the port of Fontvieille, which can also be used as an administrative office

With a comfortable surface area of  85.5 m², on the ground floor, it has 2 large windows and 2 access doors.

It consists of a spacious main room, 2 side rooms, 1 laundry room, 1 storage room, 1 toilet, and cupboards.

Sold rented 4814,77€ TTC/ month , until 30/09/2026

Details

Transaction type :

Professional sale

Property type :

Premises

City :

Monaco

Country :

Monaco

Total area :

85.50 sqm

Living area :

85.50 sqm

Nbr. of rooms :

Non défini/Aucun

Floor :

rdc

District :

Fontvieille

Building :

Le Michelangelo

Contactez-nous

    Carat properties

    Téléphone : +377 99 99 18 18

    E-mail : contact@carat-properties.com

    This site is registered on wpml.org as a development site. Switch to a production site key to remove this banner.