MAGNIFIQUE BUREAU

9 000

Rèf : AL 198 MC bis

147.00 m²
Surface totale
147.00 m²
Surface habitable
5
Nb de Pièce(s)
2
Parking(s)
1
Etage
La Rousse - Saint Roman
Quartier

description

Proche commerces, commodités et plages

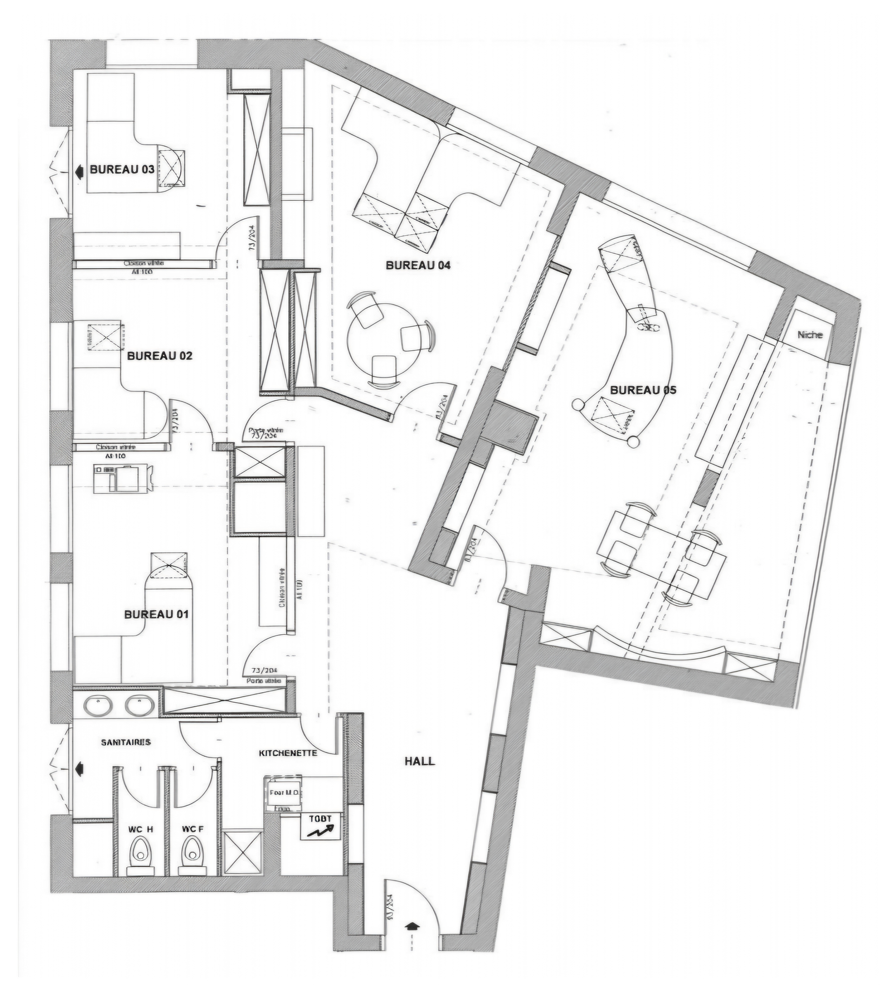
Situé dans une résidence avec service conciergerie 24h/24, magnifique bureau agencé et décoré avec goût, (bureaux, chaises, armoires, tables…), composé d'un grand hall d'entrée, un grand bureau/salle de réunion, 4 autres bureaux, kitchenette, toilette hommes, toilette femmes avec sas lavabos, climatisation.

2 emplacements parking.

 

Details

Type de transaction :

Location professionnelle

Type de propriété :

Bureau

Ville :

Monaco

Pays :

Monaco

Surface totale :

147.00 m²

Surface habitable :

147.00 m²

Nb de Pièce(s) :

5

Parking(s) :

2

Etage :

1

Quartier :

La Rousse - Saint Roman

Contactez-nous

    Carat properties

    Téléphone : +377 99 99 18 18

    E-mail : contact@carat-properties.com

    This site is registered on wpml.org as a development site. Switch to a production site key to remove this banner.