Magnifique bureau administratif / Local commercial Fontvieille

2 780 000

Rèf : AL 101 MC bis

87.00 m²
Surface totale
87.00 m²
Surface habitable
3
Nb de Pièce(s)
Rdc
Etage

description

Proche commerces et commodités

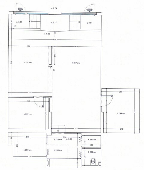
Situé au cœur de Fontvieille, magnifique bureau avec belle vitrine et double accès, composé d'un hall d'entrée, belle pièce principale, deux bureaux, une pièce de stockage, une buanderie, WC, grand placard de rangement. Climatisation. belles prestations.

Loué 4.881,40 €uros TTC / mois charges comprises. Bail 3/6/9

Details

Type de transaction :

Vente professionnelle

Type de propriété :

Bureau

Ville :

Monaco

Pays :

Monaco

Surface totale :

87.00 m²

Surface habitable :

87.00 m²

Nb de Pièce(s) :

3

Etage :

Rdc

Contactez-nous

    Carat properties

    Téléphone : +377 99 99 18 18

    E-mail : contact@carat-properties.com

    This site is registered on wpml.org as a development site. Switch to a production site key to remove this banner.